- 建売販売会
- 相談会
先行販売御予約開始【5月完成予定】新築建売住宅|東根市野田|当社人気NO1、家事導線がグルっとまわれる間取り♪月5万円の支払いで住めるお家
東根市大字野田168番36(地番)
イベント概要
- 日付:
- 2026年5月完成予定
- 時間:
- 10:00-17:00
- 場所:
- 東根市大字野田168番36(地番)
見どころポイント

月々5万円台の支払いで土地付きマイホーム
約60坪の土地+32坪/4LDKタイプの建物が、頭金ゼロ、ボーナス払いゼロ。
建売住宅/販売価格は税金込みで2,450万円です。
※建売住宅販売価格2,450万円(税込)には登記料、ローン経費、火災保険料などの諸経費は別途かかります。
【紹介ローンのご案内】●金融機関/JAてんどう ●融資額/2,450万円 ●返済期間/50年 ●金利/1.05% 変動金利 頭金0円、ボーナス払い0円で計算。
※掲載の返済例は2026年3月現在の金利・融資条件で作成しております。融資には、金融機関先の審査基準を満たすことが必要です。
融資条件や金利は情勢や審査によって変更となる場合があります、ご了承下さい。
例として…諸経費150万円分の場合。
販売価格2,450万円(税込)+諸経費150万円(税込)=2,600万円(税込)月々の支払いは55,720円となります。

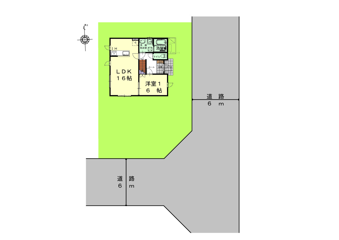
建物面積:4LDK/32坪タイプ
1階床面積/52.17㎡(15.78坪)
2階床面積/52.99㎡(16.02坪)
施工面積/105.16㎡(31.81坪)

室内イメージ
●16帖のLDK+隣接6帖で、最大22帖の大空間。
普段は広々リビングとして、来客時は開放してパーティースペースに。家族の時間も、おもてなしも、どちらも大切にできる間取りです。
●6帖の洋室は“使い分けできる安心空間”。
お子さまのお昼寝スペースやプレイルーム、在宅ワークスペースとしても活用可能。
さらに、1階をぐるっと回れる家事ラク動線で、忙しい共働き家庭の毎日をしっかりサポート。実績多数の人気プランだからこその安心設計です。
●収納付きの子ども部屋で、自分だけの成長空間を。
おもちゃや学用品をきちんと整理できるから、「自分で片付ける習慣」も自然と身につきます。友達を呼びたくなる、ワクワクするお部屋です。
●4帖ウォークインクローゼット付き主寝室。
衣類や季節物をまとめて収納できるため、朝の身支度もスムーズ。忙しい朝の時間を短縮できます。
●安心・経済的なオール電化仕様。
光熱費を一本化でき、家計管理もしやすくなります。

土地面積:198.21㎡(59.96坪)
●駐車3台可能のゆとりある敷地。
ご夫婦+来客用も安心。

一軒家の敷地だからできること
●愛犬もお庭で遊びまわれる広さ。
大好きなワンちゃんと一緒に過ごせる癒しの時間。
●庭で家庭菜園やガーデニング。
育てて学べる、親子の体験型住まい。
●プール・花火・BBQも楽しめる広さ。
家族や友人との時間を満喫できます。
【物件概要】
■場所: 東根市大字野田字京新田168番36 ■交通:野田バス停まで240m/徒歩3分 ■用途地域:無指定地域 ■地目:宅地 ■建ぺい率70% ■容積率:200% ■ガルバリウム鋼板茸2階建て ■設備:上下水道・電気 ■道路:東側・南側各6m市道 ■土地権利:所有権 ■都市計画:未線引区域 ■用途地域:無指定地域 ■学区:小田島小学校・第二中学校 ■完成予定日:2026年5月 ■現況:建築中 ■引き渡し:完成後要相談 ■建築確認番号:第R07ASC-00688号 ■駐車場:3台可能(軽自動車を含む)■備考:オール電化仕様・寒冷地用省エネエアコン1台付き ■取引態様:売主
物件登録日:2026年2月8日
今回更新日:2026年3月23日
次回更新日:2026年4月6日



周辺環境
【近隣バス停】野田バス停まで240m/徒歩3分
毎日の買い物も車で10分以内の範囲。
小学校は徒歩7分、近隣駅への送迎も車で6分と、安心で便利な嬉しいポイント!
・小田島小学校・・・510m/徒歩7分
・第二中学校・・・2,320m/徒歩29分/車で6分
・認定こども園小田島・・・610m/徒歩8分
・小田島郵便局・・・30m/徒歩1分
・さくらんぼ東根駅(西口入口)・・・2,310m/徒歩29分/車で6分
・セブンイレブン東根蟹沢南店・・・1,730m/車で5分
・ヤマザワさくらんぼ東根店・・・1,760m/車で5分
・フォーラム東根・・・1,820m/車で5分
・ローソン野田・・・1,540m/車で4分
・サンデー東根中央店・・・2,690m/車で7分
・イオン東根店・・・2,880m/車で8分
・東根市役所・・・3,560m/車で9分

地図
子育て環境が充実の人気東根市エリア

現在、建築中
2026年3月22日現在
来場メリット

HP限定!新規来場予約プレゼント
ホームページで「事前ご予約」いただいた新規のご来場特典として、QUOカードまたはAmazonカード1,000円分をプレゼント‼
※ご家族様1組につき、新規ご来場の1回限りの特典となります。
イベント概要
- 日付:
- 2026年5月完成予定
- 時間:
- 10:00-17:00
- 場所:
- 東根市大字野田168番36(地番)










